We design and create with passion!


Our Process

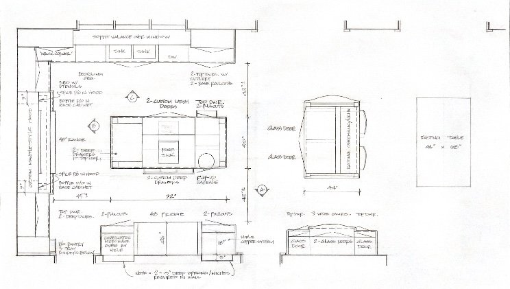
Design & Consultation

When we have been selected to create your custom cabinetry, Andy Deir will sit down with you to discuss all of your wants and needs. Andy will then take to his drafting table and provide you with a hand-drawn, tailor made design, that will allow you to see your vision come to life. Andy and his team work closely with Interior Designers, Architects, and Builders to coordinate and ensure the look and function of your cabinetry exceeds your expectations.


Crafting

Once the site measurements and final details have been completed, a full set of shop elevations will be given to our cabinet maker, Matt Deir, to begin shop production. During this stage, Matt will carefully craft your custom cabinetry with exceptional accuracy and attention to detail.


Installation

Once the Design and Crafting stages of the project are complete, it is finally time to pull it all together. With Matt working as both our Cabinet Maker and Installer, he is able to craft the cabinetry while keeping the installation process in mind. This results in a fit and finish that is of the highest standard.